02.04.2026
Автоматическая линия для производства шурупа путевого железнодорожного рельсового скрепления типа VOSSLOH W21, Vossloh W30, ЖРБ ЦП54
Мы проектируем и производим автоматические линии для производства шурупа путевого железнодорожного рельсового скрепления типа VOSSLOH W21, Vossloh W30, ЖРБ ЦП54 в составе с линией поперечно-клиновой прокатки WRL2509 c плоским прокатным инструментом.
Автоматическая линия для производства шурупа путевого железнодорожного рельсового скрепления типа VOSSLOH W21, Vossloh W30, ЖРБ ЦП54
Автоматизация производства шурупа путевого железнодорожного в том числе для рельсовое скрепление типа VOSSLOH W21, Vossloh W30 с четырёхгранной головой, шуруп путевой ЖБР с шестигранной головой ЦП 54. Предлагаемая технология и комплекс оборудования позволяет организовать эффективный технологический процесс производства шурупов путевых рельсовых скреплений от прутка металла до готового изделия. Ключевой особенность предлагаемого комплекса оборудования является использование для накатки резьбы линии поперечно-клиновой прокатки WRL2509 с плоским прокатным инструментом, что позволяет формировать резьбу с равномерным заполнением материала зубьев без разрыва продольных волокон макроструктуры. По сравнению с накаткой резьбы валками поперечно-клиновая прокатка с плоским инструментом обеспечивает многократное увеличение стойкости инструмента и точности шага резьбы, так же изготовление и обслуживание инструмента не требует дорогостоящего оборудования. Технология плоской поперечно-клиновой прокатки позволят проходить испытание шурупа путевого на изгиб без разрушения шурупа, улучшаются прочностные характеристики.

Производительность линии по производству изделия шуруп путевой St 35, Ss 25, Ss35, ЦП-54
1. Производительность цикл прокатной линии 5 сек или 12 шт в минуту.
Производительность по году.
12х60х24х25х12х0,8 ≈ (от 4147200 до 4 400 000 шт.)
2. Прокатка резьбы на 2х винтах за один проход нецелесообразна! Так как при последующей штамповки головки шурупа происходит нарушение геометрических параметров резьбы.
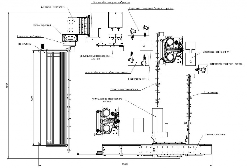
3. Нами с 2010 год изготовлено и введено в эксплуатацию 10 линий по изготовлению изделия «Шуруп путевой» по следующему техпроцессу (см. док тех. процесс производства шурупа):
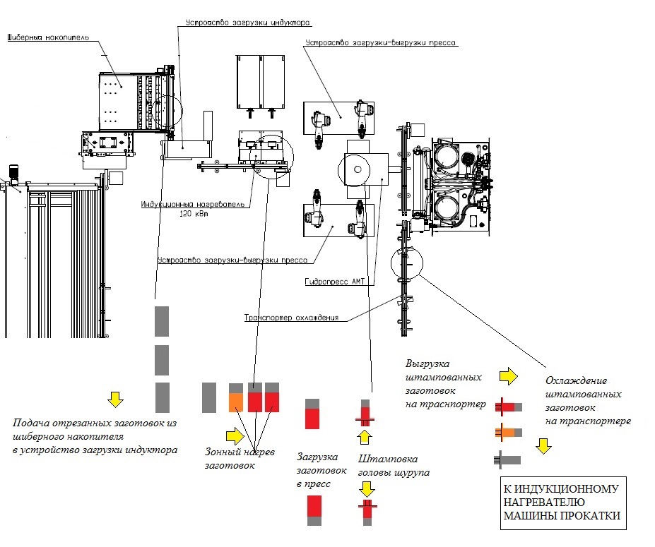
Техпроцесс производства шурупа от заготовки до конечного изделия.
1. Отрезка заготовки от пруткового или бухтового материала с предварительной правкой;
2. Загрузка нарезанных заготовок в шиберный бункер.
3. Ритмичная подача заготовок из шиберного бункера в устройство загрузки индуктора.
4. Нагрев части заготовки под последующую штамповку головки шурупа;
5. Штамповка головки с облоем в Гидропрессе АМТ (для четырёхгранных головок типа St 35, Ss 25, Ss35 систем VOSSLOH W21, Vossloh W30) или штамповка шестигранной головы шурупа ЦП-54 без облоя; Возможна штамповка четырёхгранной головки типа St 35, Ss 25, Ss35 систем VOSSLOH W21, Vossloh W30 за два перехода с получением заготовки с отштампованной головой без облоя.
6. Охлаждение штампованных заготовок на транспортёре.
7. Загрузка штампованных заготовок в проходной индуктор.
8. Нагрев части заготовки под прокатку резьбы на линии поперечно-клиновой прокатки WRL2509
9. Прокатка на линии ПКП резьбы на заготовке с отштампованной головкой;
10. Охлаждение шурупа;
11. Обрезка облоя на головке шурупа (для четырёхгранных головок типа St
35, Ss 25, Ss35 систем VOSSLOH W21, Vossloh W30). Если не используется другой производственный процесс или изделие.
Используемая нами технология позволяет выдерживать геометрические параметры каждого элемента шурупа путевого. Карта процесса шурупа (для четырёхгранных головок типа St 35, Ss 25, Ss35 систем VOSSLOH W21, Vossloh W30) представлена в документе Тех. процесс производства шурупа. Для шурупа путевого с шестигранной головой типа ЦП-54 не требуется этап обрезки облоя головы.
Требуемые энергоносители (электричество, воздух, вода)
Установленная мощность оборудования
№ / Оборудование/ количество /мощность, кВт
1/Накопитель /1 /1
2/Устройство подающее/1/1,5
3/Пресс отрезной заготовок/1/7,5
4/Шиберный накопитель заготовок/1/1,5
5/Устройство загрузки индуктора/1/0
6/Индукционный нагреватель 120 кВт (1 мод)/1/120
7/ Устройство загрузки-выгрузки пресса/2 /5
8/ Гидропресс АМТ (штамповка головки)/1/15
9/ Транспортер охлаждения/1/1,5
10/ Индукционный нагреватель 160 кВт (2 мод)/1/160
11/Машина прокатная (прокатка резьбы)/ 1/90
12 /Транспортер/1/1,5
13 /Устройство загрузки пресса обрезного /1 /2,5
14 /Гидропресс обрезной АМТ /1 /12,5
ИТОГО 15 419,5
Сеть трехфазная переменного тока 380 В и частотой 50 Гц.
• Пневмооборудование оборудования должно питаться от сети сжатого воздуха давлением 0,4…0,6 МПа и расходом не менее 30 м3/час.
• Охлаждение нагретых узлов и элементов линии водяное принудительное непрерывной подачей воды давлением 0,2…0,4 МПа. Система водяного охлаждения должна быть герметичной. Температура оборотной воды на входе в линию – не более 25 0С. Расход воды не менее 16 м3/ч.
Наиболее теплонагруженные узлы линии поперечно-клиновой прокатки имеют систему охлаждения оборотной водой. Что обеспечивает сохранение стабильных размеров получаемых шурупов во время всей рабочей смены линии.
Система управления
• Система управления на базе контроллера Mitsubishi.
• Система управления, основанная на программируемом контроллере, позволяет линии работать в наладочном и автоматическом режимах с выводом всех настроек на панель оператора, обеспечивать самодиагностику и контролировать работу всех управляемых элементов линии;
• Комплекс оборудования позволяет осуществлять автоматизацию производственного процесса шурупа путевого железнодорожного от прутка металла до конечного изделия с штампованной головкой и прокатанной резьбой.
• Высокая степень автоматизации. Обеспечивает бесперебойную и стабильную работу линии с полным контролем всех параметров (в том числе в составе с индукционным нагревателем, контролем температуры нагрева заготовок и отбраковкой или подачей в линию, системой цикличной подачи заготовок из шиберного бункера, прокаткой поковок и передачу на следующий производственный этап);
Стойкость клинового инструмента машины прокатной
Стойкость инструмента зависит от уровня требований к точности прокатанных заготовок, температуры деформации и материала инструмента. Кроме этого, важным фактором является индивидуальность каждого предприятия в подходах к правилам эксплуатации. Поэтому стойкость каждого инструмента оговаривается как величина усреднённая. Показателем стойкости является количество прокатанных заготовок. С целью повышения показателя точности инструмент поставляется термически обработанным по всему объёму равномерно. Размеры инструмента содержат ремонтные припуски, позволяющие производить от 5 до 15 ремонтов путем последовательного уменьшения его высоты.
Формующие элементы инструмента прокатного изготавливают из стали, применяемой для производства штампов (Р6М5, М2) с закалкой в вакуумной печи.
Усреднённые показатели стойкости, достигаемые на практике, следующие: для изделий, предназначенных под последующую штамповку, достигается стойкость 1 400 000 изделий. При опытной эксплуатации стойкость может доходить до 2500000 изделий.
Один комплект клинового инструмента состоит из верхней и нежней монтажной плиты с установленными на них клиновыми элементами. Для производства и ремонта клиновых элементов не требуется сложного оборудования.
ВЫВОД
Для увеличения производительности участка высадки головки шурупа можно использовать горизонтально-ковочную машину. Для снижения стоимости вместо новых прессов возможно использовать пресса производства Китай или бывшего СССР. Возможно использовать операторов или роботов для загрузки и выгрузки заготовок установки индукционного нагрева, прессов, операций перемещения заготовок с поста на пост.
Перед отправкой комплекс оборудования проходят приемочные испытания на нашей территории. Материал для испытаний предоставляет Заказчик. Испытанные образцы и остатки материала обычно отгружаются вместе с оборудованием
Пуско-наладочные работы: подготовка производственной площадки с фундаментом под оборудование с подводом необходимых коммуникаций в соответствии с чертежами подвода коммуникаций и планами фундамента, предоставленными АМТинжиниринг (Поставщиком), проводятся силами Заказчика. До прибытия специалистов АМТинжиниринг (Поставщика) для проведения пуско-наладки расстановка оборудования производится силами Заказчика в соответствии с планом расположения оборудования, не требует присутствия специалистов Поставщика. Подключение, запуск, испытания, сдача оборудованиями в рамках пуско-
наладочных работ производится специалистами Поставщика. В момент проведения пуско-наладочных работ происходит обучение специалистов Заказчика работе на оборудовании.
Сопровождающая техническая документация
•Руководство по эксплуатации и обслуживанию;
•Общие технические чертежи (чертежи сборки основных групп);
•Электронные, электрические, гидравлические, пневматические схемы, список ЗИП.
•Во избежание несанкционированного изменения программного обеспечения исходники программы управления линией передаются после окончания гарантии на оборудование. В гарантийный период обеспечивается удаленная сервисная поддержка программного обеспечения.
•Декларация соответствия линии техническим регламентам Таможенного союза «О безопасности низковольтного оборудования ТР ТС 004/2011, технического регламента Таможенного союза «О безопасности машин и оборудования» ТР ТС 010/2011, технического регламента Таможенного союза «Электромагнитная совместимость технических средств» ТР ТС020/2011
Эстетические, эргономические требования
•Оборудование линии должно быть удобно в эксплуатации и обслуживании;
•Рабочее место оператора должно находиться в зоне, обеспечивающей наблюдение за работой основных составляющих линии;
•Рама RAL 5005 синий; съемные крышки: RAL7035 (серый). Корпусы шкафов и пультов электрической части: RAL7035 (серый) (не окрашиваем в другие цвета).
Возможна окраска рамы и защитных экранов (кроме шкафов и пультов управления) в другой цвет (как вариант: цвет рамы и окрашиваемых частей оборудования - антрацитово-серый RAL 7016. Цвет подвижных частей и элементов безопасности - ярко-оранжевый RAL 2008).
•Система управления должна состоять из следующих основных компонентов: программируемый логический контроллер фирмы «Mitsubishi»; панель оператора фирмы «Mitsubishi».
Режим работы: автоматический и наладочный
•Управление линией в автоматическом режиме с центрального пульта управления;
•Управление линией в наладочном режиме с наладочного и центрального пультов управления;
Производство
•Собственное производство: ООО «Инженерный центр «АМТинжиниринг», г. Минск
•Собственное проектирование линии поперечно-клиновой прокатки, ИНУ, штампов, прокатного инструмента, системы управление линией: ООО «Инженерный центр «АМТинжиниринг»
•Изготовление основных узлов инструмента, валов, рамы, ПО: ООО «Инженерный центр «АМТинжиниринг»
•Сервисная служба и сервисная поддержка: ООО «Инженерный центр «АМТинжиниринг»
В случае заинтересованности ждём ваших запросов. Мы можем предложить исполнение оборудование подходящее под ваши задачи и сроки поставки, которое позволит расширит номенклатуру выпускаемой продукции.
t. +375-17-500-31-13
f. +375-17-500-31-32
+375255001523 (Viber, Whatsapp, МАКС)
amtengine@amtengine.com